Design Review & Audit Engineering
SIE brings decades of experience in design review and auditing across a wide range of assets, including bulk materials handling machines, marine infrastructure, cranes, and fixed plant. Our audits ensure the early identification of potential issues, leading to the primary aim of ensuring design compliance. This provides peace of mind and confidence for asset owners and operators that structural performance and contractual obligations are being met.
Spotting Issues Early,
Saving Time Later
Confidence in the correctness of a provided design is important for technical, legal and commercial reasons. An independent structural design review or audit can assist with establishing that suppliers and owners are complying with their internal requirements and statutory duties, including due diligence.
SIE has a wealth of experience in design review and auditing including:
- Bulk materials handling machine auditing to AS4324.1 of over 80 machines, including reclaimers (to over 20,000tph), stackers (to over 13,500tph) and shiploaders (to over 13,000tph).
- Design review and auditing of marine facilities.
- Crane structural design reviews and audits.
- Independent reviews of new structures and proposed upgrades and remedial works.

We Know What to Look For, and Where to Look

Our clients benefit from our structured approach to design review and auditing by receiving clear and concise information that allows them to understand the status of a provided design by others and what corrective actions are necessary to achieve compliance to a contract, specification, standard or possibly statute.
By use of our experience, detailed knowledge of a wide array of Australian and International standards and where necessary independent verification methods, we provide the following benefits to our clients:
- Assistance with establishing the project design criteria.
- Knowing the compliance status of a provided design for structural elements against the requirements of the relevant contract specification, standards and legislation.
- Being able to quickly identify where issues and problems may arise in design, fabrication, erection or remedial works.
- Identifying risks associated with non-compliance and communicating the key issues by the use of clear and concise reporting methods.
Some of our Design Review Projects:

Grab Rotator Pin Removal Tool Verification
This project involved structural design verification of a custom maintenance tool used for removing the grab rotator pin on an E-Crane. The scope included analysis of the tool’s original configuration and re-assessment under a modified arrangement to support a higher working load limit. Engineering work covered load capacity verification, reinforcement detailing, and preparation of updated certification documentation to ensure safe and compliant use of the tool in field operations.

Product Shed Structural Design Audit
This project involved a structural engineering audit of a large industrial shed, including the development of a full SpaceGass model to assess the shed’s structural behaviour under expected loading conditions. The audit reviewed the original design intent, structural layout, and connection details, with a focus on identifying areas of concern and validating the integrity of key structural components. The model enabled simulation of load paths and stress distribution, supporting a risk-based assessment of the shed’s current condition and informing future maintenance and upgrade planning.

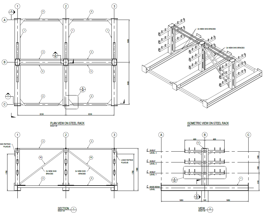
Maintenance Steel Rack Design Audit
This project involved a structural design audit of an existing steel rack used for maintenance operations. The rack had been taken out of service due to the absence of a verified load rating. Using client-supplied drawings, a full engineering review was undertaken to assess the rack’s strength, stability, and deflection performance in accordance with Australian standards. The outcome included certified design documentation detailing the rack’s structural arrangement, weld requirements, and safe working load capacity, enabling its return to service with confidence.
Why Structural Integrity Engineering Is the Right Choice
Specialist structural engineering advice trusted for over 25 years. Our team's total cumulative knowledge and experience delivers expert guidance on critical, complex, and challenging structural projects across Australia and overseas. We take on projects other companies shy away from.
Providing Trusted Specialised Engineering Services for over 25 Years
Rapid incident recovery support you can rely on. Unexpected incidents can be stressful and costly. Our team responds quickly to help restore operations safely and efficiently, ensuring remedial works can be carried out in a risk-controlled manner.
Responding Fast to Keep Your Assets Operational
Our proven experience and technical expertise supports preventative maintenance, life extension, and asset longevity. Talk to us about how our technical abilities and specialist services can help with your asset reliability.
Reliability You Can Count On From Maintenance to Longevity
Get in touch
Let us know how we can help you.

