Structural Design & Documentation
SIE delivers clear, concise, and targeted structural engineering advice to support all stakeholders involved in the design, specification, fabrication, construction, and maintenance of critical structural assets. Our approach ensures that every design is practical, safe, and tailored to meet the specific demands of each project. A depth of knowledge is required for brownfield works, and our extensive experience in this area provides value to our clients.
No Matter the Plant,
We've Been There
Structural design documentation is required to be
prepared to satisfactorily and consistently convey the
necessary information to a variety of persons involved in
the fabrication, construction and maintenance of
structures. The purpose of clear design processes and
documentation is to achieve:
- Clear and consistent design criteria from the starting
point of a project. - Justifying calculations to adequately assess the
compliance status of structural elements in accordance
with the relevant standards and legislation. - Clear drawings and specifications to convey the
necessary information required for correct fabrication
and construction. - Clear and concise reports and correspondence to
describe the key issues to client personnel.

Designs That Work in the
Real World
Our clients benefit from our structured design and
documentation process by receiving clear, concise and
targeted information that allows them to understand the
requirements of a project, the criteria used for assessment
and actions necessary for execution.
By use of contemporary and efficient tools such as
structural analysis software, electronic calculation
software, CAD drafting and modelling packages for the
preparation of structural design documentation and a
100% electronic record keeping system, we provide the
following benefits to our clients:
- Knowledge and participation in setting the design
criteria for a project. - Knowing that the compliance status of structural
elements has been performed in accordance with the
relevant standards and legislation. - Being able to immediately utilise design drawings and
specifications to provide the necessary information to
their Contractors for fabrication and construction. - Efficiently obtaining the key issues from the
transmission of clear and concise reports.
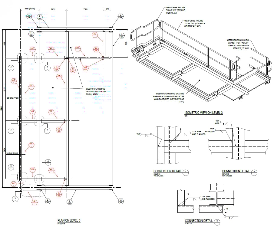
Explore Some of our Design Projects:

E-Crane Counterweight Restraint Design
This project involved the structural design and documentation of temporary steelwork to safely restrain the counterweight and boom of an E-Crane during connection rod bearing replacement. The scope included assessment of crane geometry, development of setup drawings, and preparation of a detailed work instruction to ensure safe execution of the procedure. The design was tailored to the crane’s parked position and focused on compliance, stability, and practical implementation.

Winch Rope Snapback Guarding Design
This project involved the detailed structural design of snapback guarding for mooring winches on a transhipping barge. Two guarding configurations were developed to suit different rope exit paths—one for ropes leaving the underside of the winch drum and another for ropes exiting from the top. The design was based on a 5-tonne impact force and aimed to protect personnel from rope recoil during failure events. Deliverables included construction-ready design drawings tailored to each winch arrangement.

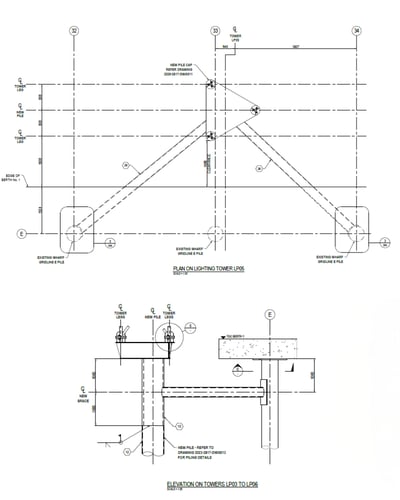
Lighting Tower Support Structure Design
This project involved the structural design of new piled foundations to support relocated lighting towers at a marine berth. The scope included engineering analysis and detailing of custom steel support structures anchored to newly positioned piles, ensuring adequate clearance and integration with existing deck infrastructure. Design drawings were developed to construction-ready status, incorporating revised pile locations and connection details to suit site constraints and installation equipment.
Why Structural Integrity Engineering Is the Right Choice
Specialist structural engineering advice trusted for over 25 years. Our team's total cumulative knowledge and experience delivers expert guidance on critical, complex, and challenging structural projects across Australia and overseas. We take on projects other companies shy away from.
Providing Trusted Specialised Engineering Services for over 25 Years
Rapid incident recovery support you can rely on. Unexpected incidents can be stressful and costly. Our team responds quickly to help restore operations safely and efficiently, ensuring remedial works can be carried out in a risk-controlled manner.
Responding Fast to Keep Your Assets Operational
Our proven experience and technical expertise supports preventative maintenance, life extension, and asset longevity. Talk to us about how our technical abilities and specialist services can help with your asset reliability.
Reliability You Can Count On From Maintenance to Longevity
Get in touch
Let us know how we can help you.

